


棒銷聯軸器的適用范圍適用于聯接兩同軸線的傳動軸系,具有 的補償兩軸相對偏移和一般減震性能。工作環境溫度為-20º~+70ºC.不適用于對減震效果要求很高和對噪音需要控制的部位。
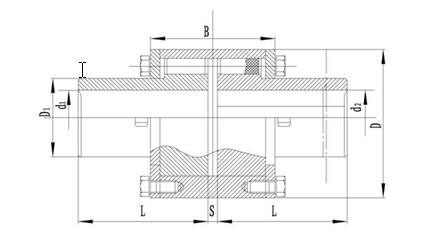
| BL型彈性棒銷齒式聯軸器基本參數和主要尺寸 mm |
|
型號
|
公稱扭矩
N.m
|
許用
轉速
rpm
|
孔徑直徑mm
d1、d2
|
軸孔長度mm
|
D
|
S
|
B
|
許用補償量
|
轉動
慣量
N.m2
|
質量kg |
|||||||
|
Y型
|
J1型
|
軸向
|
徑向
|
角向
|
|||||||||||||
|
L
|
L
|
mm
|
(º)
|
||||||||||||||
|
BL1
|
610
|
3800
|
25,28
|
55
|
65
|
145
|
5
|
66
|
±1.5
|
0.2
|
0º30¹
|
0.882
|
11
|
||||
|
30,32,35,38
|
60
|
80
|
|||||||||||||||
|
40,42,45,48
|
70
|
110
|
|||||||||||||||
|
BL2
|
1500
|
3000
|
40,42,45,48,50,55
|
70-110
|
110
|
165
|
5
|
76
|
±1.5
|
0.2
|
0º30¹
|
1.96
|
18
|
||||
|
60
|
110-140
|
140
|
|||||||||||||||
|
BL3
|
3920
|
2400
|
50,55
|
70-110
|
110
|
190
|
5
|
86
|
±1.5
|
0.3
|
0º30¹
|
4.312
|
30
|
||||
|
60,65,70,75
|
110-140
|
140
|
|||||||||||||||
|
80
|
125-170
|
170
|
|||||||||||||||
|
BL4
|
6174
|
2000
|
60,65,70,75
|
110-140
|
140
|
230
|
5
|
106
|
±1.5
|
0.3
|
0º30¹
|
9.702
|
42
|
||||
|
80,85,90
|
125-170
|
170
|
|||||||||||||||
|
BL5
|
9800
|
1680
|
70,75
|
110-140
|
140
|
270
|
5
|
116
|
±1.5
|
0.4
|
0º30¹
|
23.52
|
81
|
||||
|
80,85,90,95
|
110-200
|
180
|
|||||||||||||||
|
100,110,120
|
172
|
210
|
|||||||||||||||
|
BL6
|
15680
|
1500
|
80,85,90,95
|
120-170
|
170
|
290
|
10
|
127
|
±2.5
|
0.4
|
0º30¹
|
31.36
|
101
|
||||
|
100,110,120
|
160-210
|
210
|
|||||||||||||||
|
130
|
200-250
|
250
|
|||||||||||||||
|
BL7
|
24500
|
1270
|
90、95
|
140-170
|
170
|
350
|
10
|
147
|
±2.5
|
0.4
|
0º30¹
|
79.38
|
151
|
||||
|
100,110,120
|
160-210
|
210
|
|||||||||||||||
|
130,140,150
|
200-250
|
250
|
|||||||||||||||
|
BL8
|
30870
|
1140
|
100,110,120
|
160-210
|
210
|
370
|
10
|
167
|
±2.5
|
0.6
|
0º30¹
|
123.52
|
206
|
||||
|
130,140,150
|
200-250
|
250
|
|||||||||||||||
|
160,170
|
240-300
|
300
|
|||||||||||||||
|
BL9
|
39200
|
1000
|
110,120
|
160-210
|
210
|
400
|
10
|
167
|
±2.5
|
0.6
|
0º30¹
|
175.42
|
290
|
||||
|
130,140,150
|
200-250
|
250
|
|||||||||||||||
|
160,170,180
|
240-300
|
300
|
|||||||||||||||
|
BL10
|
61740
|
850
|
130,140,150
|
200-250
|
250
|
470
|
10
|
177
|
±2.5
|
0.6
|
0º30¹
|
343
|
377
|
||||
|
160,170,180
|
240-300
|
300
|
|||||||||||||||
|
190,200,210
|
280-350
|
350
|
|||||||||||||||
|
BL11
|
98000
|
750
|
150
|
200-250
|
250
|
520
|
10
|
201
|
±2.5
|
0.8
|
0º30¹
|
597.8
|
520
|
||||
|
160,170,180
|
240-300
|
300
|
|||||||||||||||
|
190,200,210,220,230,
240,250
|
280-350
|
350
|
|||||||||||||||
|
BL12
|
122500
|
660
|
170,180
|
240-300
|
300
|
560
|
10
|
231
|
±2.5
|
0.8
|
0º30¹
|
989.8
|
660
|
||||
|
190,200,210,220,230,
240,250
|
280-350
|
350
|
|||||||||||||||
|
260,270,280
|
320-420
|
-
|
|||||||||||||||
|
BL13
|
155800
|
600
|
190,200,210,220,230,
240,250
|
280-350
|
350
|
630
|
10
|
261
|
±2.5
|
1.0
|
0º30¹
|
1630.6
|
876
|
||||
|
260,270,280,290,300
|
320-420
|
-
|
|||||||||||||||
|
BL14
|
245000
|
540
|
210,220,230,240,250
260,270
|
280-350
|
350
|
690
|
10
|
285
|
±2.5
|
1.0
|
0º30¹
|
2675.4
|
1124
|
||||
|
280,290,300,310,320,330,340
|
350-420
|
-
|
|||||||||||||||
|
BL15
|
308700
|
480
|
230,240,250,260,270
280,290,300
|
320-350
|
-
|
750
|
10
|
315
|
±2.5
|
1.2
|
0º30¹
|
4410
|
1830
|
||||
|
310,320,330,340
350,360,370,380
|
420-480
|
||||||||||||||||
|
BL16
|
392000
|
425
|
250,260,270,280,290,300,310,320,330,340
|
350-400
|
-
|
850
|
15
|
345
|
±5
|
1.2
|
0º30¹
|
7408.8
|
2370
|
||||
|
350,360,370,380
390,400,410,420
|
420-480
|
||||||||||||||||
|
BL17
|
617400
|
380
|
280,290,300,310,320
330,340,350,360,370
380,390,400
|
400-450
|
-
|
930
|
15
|
369
|
±5
|
1.5
|
0º30¹
|
12475.4
|
3350
|
||||
|
410,420,430,440,450
460,470,480
|
480-560
|
||||||||||||||||
|
BL18
|
980000
|
330
|
300,310,320,330,340
350,360,370,380,390
400
|
450-480
|
-
|
1000
|
15
|
389
|
±5
|
1.5
|
0º30¹
|
20139
|
4077
|
||||
|
410,420,430,440,450
460,470,480,490,500
580
|
530-560
|
||||||||||||||||
|
BL19
|
1568000
|
300
|
350,360,370,380,390
400,410,420,430,440
|
480-560
|
-
|
1110
|
15
|
409
|
±5
|
1.5
|
0º30¹
|
40062.4
|
5690
|
||||
|
450,460,470,480,490
500,530,560,600
|
600-650
|
||||||||||||||||